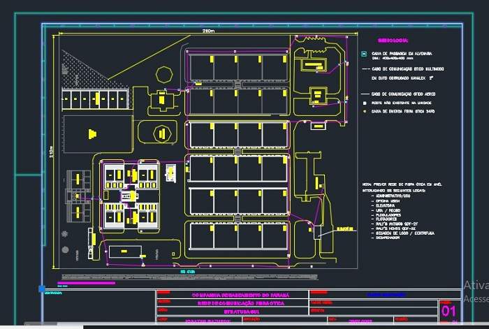
Projeto Rede Fibra óptica - Sanepar ETE Atuba
O projeto realizado tinha por objetivo a implementação da rede de fibra óptica da estação de tratamento da Sanepar no Atuba. O projeto foi desenvolvido para atender todos os postos da rede, desde a guarita a flotadores, ura, elevatória, administrativo, dentre outros. Alem da planta em 2d, foi desenvolvido um memorial descritivo contendo um conjunto de discriminações técnicas, critérios, condições estabelecidos na prestação de serviços de instalação da rede de comunicação de fibra ótica cjunto com a listagem de todos os materiais a serem utilizados.
