Veja nossa Localização (41) 4114-0039
Acesso Restrito
Wide Tech Automação
  • Soluções
    • Kits Didáticos
    • Máquinas
    • Industrial
    • Serviços
  • Galerias
  • Empresa
  • Assistência
CONTATO
  • Home
  • Galerias
  • Projeto Elétrico Paróquia

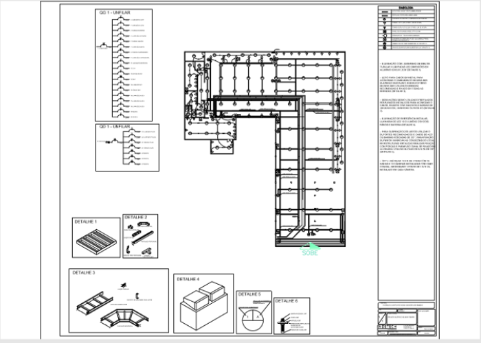
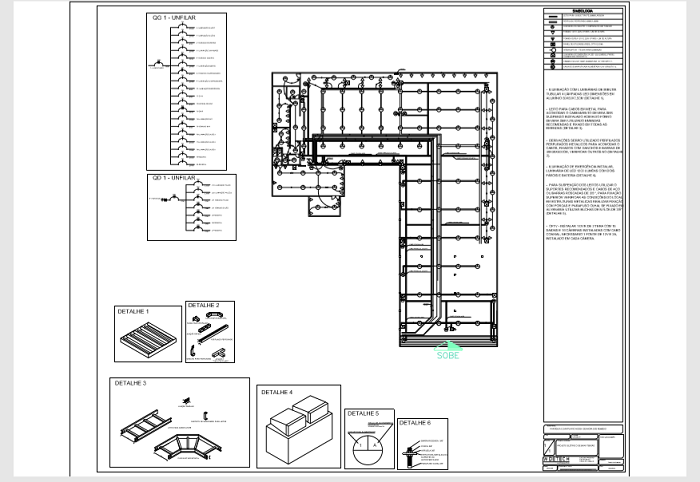
Projeto Elétrico Paróquia

Elaboração de projeto elétrico do salão paroquial da Igreja Nossa Senhora dos Remédios de Araucária, contendo diagrama unifilar de painéis, circuitos de tomadas, iluminação, sistemas de sonorização, CFTV, levantamento de carga, lista de materiais e instruções de montagens. 

  • SHOW ALL
  • Projeto Elétrico Paróquia
Wide Tech Automação

A WideTech Automação assumiu a fabricação de bancadas didáticas e a prestação de serviços voltada para automação, manutenção, projetos, instalações elétricas e montagens industriais.

  • Endereço: R. João Kmiecik, 144 - Barigui Araucária - PR, 83707-620
  • Telefone: (41) 4114-0039
  • Email: contato@widetechaut.com.br

LINKS ÚTEIS

  • Home
  • Soluções
  • Kits Didáticos
  • Máquinas
  • Galerias
  • Assistência Técnica
  • Contato

ÚLTIMAS GALERIAS

Entrega Bancadas com Robôs Colaborativos SENAI - PR

25 de outubro de 2022

Entrega Bancadas UTFPR -CAMPUS PONTA GROSSA / PR

14 de maio de 2021

Logomarca para Advogados Criação de Logomarca Desenvolvido pela Dynamica Soft